日本エコハウス大賞2026

日本エコハウス大賞2019

代々賞協賛企業賞

漆喰と無垢の木の家

BANhome

断熱等級5(0.47W/㎡K)

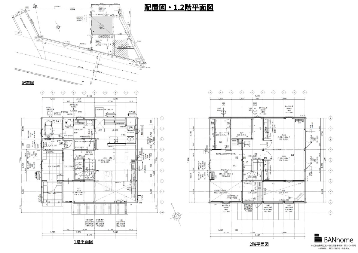
漆喰の塗り壁と無垢材の床に包まれた自然素材の空間は、子どもたちの健やかな成長を支える住まいである。家族で漆喰塗りに挑戦することで、手づくりの記憶が家への愛着につながり、暮らしに彩りが加わる。2階の書斎は吹抜け越しにリビングとつながり、家族の気配を感じながら仕事ができる。屋根付きのウッドデッキは、団らんのひとときを楽しむ場所だ。回遊性のある水廻り動線により家事効率が向上し、日々の暮らしにゆとりが生まれる。外観はスギ板張りとし、周辺環境に溶け込む日本らしい佇まいを意識。壁体内には透湿性のある断熱材や面材を採用し、構造体の健全性と住まいの長寿命化を図るつくりである。

DATA

設計・施工 藤真工業(BANhome)
所在地 新潟県刈羽郡刈羽村
家族構成 夫婦+子ども2人
敷地面積 577.93㎡(174.47坪)
延床面積 109.30㎡(32.98坪)/1階56.31㎡(16.99坪)・2階52.99㎡(15.99坪)
竣工年月 2022年4月

省エネルギー性

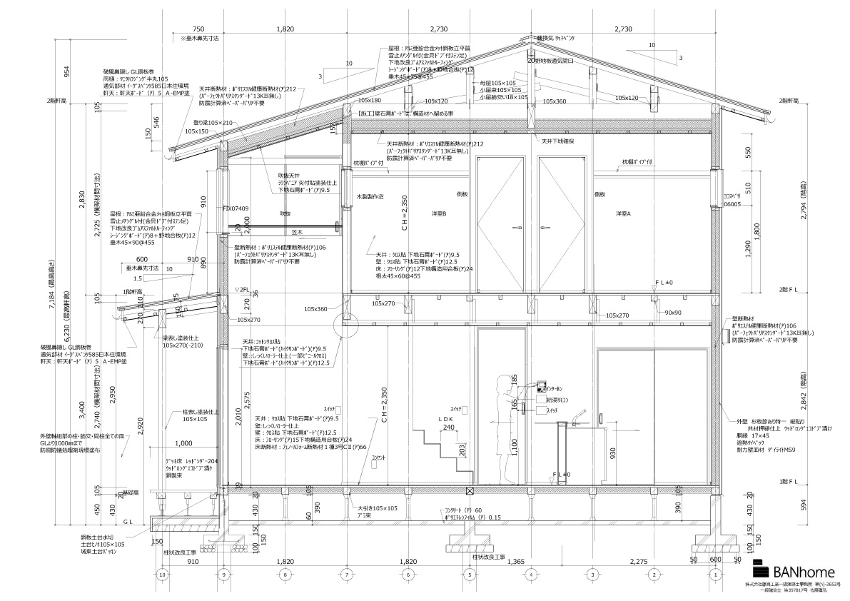
断熱性能(UA値) 断熱等級5(0.47W/㎡K)
日射取得(ηA値) 暖房期1.5 冷房期1.1
気密性能(C値)
屋根・天井 「パーフェクトバリア」(エンデバーハウス)13K212㎜(106㎜+106㎜)
外壁 「パーフェクトバリア」(エンデバーハウス)13K106㎜
床・基礎 ネオマフォーム66㎜
「APW330」(YKK AP)
暖房設備 エアコン7.1kW・3.6kW・2.5kW
冷房設備 エアコン7.1kW・3.6kW・2.5kW
給湯設備 エコキュート460ℓ
換気設備 第3種換気
創エネ設備
耐震性能 耐震等数2相当
その他 制震ユニットミライエ6基搭載
  • 屋根のあるウッドデッキで家族で日向ぼっこ。
    心地良い時間を共有する場所。

  • テラス窓の先に田園風景が広がる。

  • 国産杉板にウッドロングエコを施した外装。杉板材を張ることで炭素貯蔵にも寄与する。

  • リビング上部に吹抜けを設け、吹抜の窓からも冬の日射が得られるよう設計。

  • 家族で漆喰塗りに挑戦。良い思い出になるとともに家に愛着を持ってもらえる。

審査員講評

応募作品のなかで唯一、「エンボディドカーボン」や「オペレーショナルカーボン」に言及し、それらを考慮して素材を選定している点を大きく評価しました。住宅業界では「CO2排出量の削減」への意識はまだまだ低いと言わざるを得ない状況がありますが、今後は対応が求められるようになると思います。また、本作品は、シンプルなつくりにしてコストを抑えながら、居住性もしっかり考慮されており、誰にとっても住みやすい普及型の住宅モデルといえるでしょう。